Gantries | Portals | Semi-Portals | Lattice Towers

Fabrication of Gantry & Overhead Sign Structures According to Client Project Documentation

Signal Sombor fabricates steel gantries and overhead support structures for traffic signage mounting. Every gantry, portal, and support frame is manufactured strictly in accordance with client-supplied project documentation prepared by certified traffic and civil engineers. Production is focused on structural integrity, regulatory compliance, and long-term durability in demanding outdoor conditions.

Designed by You — Fabricated by Signal Sombor

Our team fabricates each structure in exact accordance with the provided technical documentation. All structural dimensions, load specifications, foundation and anchor plate details, material requirements, welding procedures, and corrosion protection systems are followed precisely. Every portal, cantilever, and semi-portal assembly is engineered to meet defined technical standards and specified load conditions for traffic infrastructure applications.

Your Documentation Defines the Structure

Signal’s production follows client-supplied 2D/3D CAD and BIM documentation, including technical drawings, load calculations, material specifications, and structural details, as defined by the client. Compliance with EN ISO 3834-2 welding standards and EN 1090-1 / EN 1090-2 certifications ensures every welded connection and structural assembly meets European quality benchmarks.

Types of Structures We Fabricate

Signal produces a comprehensive range of steel support structures for highways, urban roads, and regional traffic networks. The portfolio includes full-span portal gantries, semi-portal configurations, asymmetric cantilever structures, T-portals, and lattice towers. Each structure is fabricated according to client-defined project documentation incorporating load classes, wind and seismic calculations, safety requirements, and site-specific installation parameters.

This approach ensures that all gantries, cantilever supports, semi-portals, T-portals, and lattice towers meet strict requirements for strength, stability, and durability, while complying with EN 1090-1, EN 1090-2, and EN ISO 3834-2 certified fabrication standards.

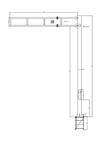
Portal (Two-Column) Gantries

Full-span steel gantry structures intended for multi-lane highways and high-capacity roads. Designed for high load-bearing capacity and stability, these structures provide support for large-format mounted traffic signage, variable message systems, and traffic control equipment, and are fabricated in accordance with EN 1090-2 certified processes.

Cantilever (One-Sided) Structures

Cantilever support structures are used where installation of a full-span gantry is unnecessary or impractical. They provide reliable load capacity for mounted traffic signage while reducing structural footprint, foundation requirements, and installation complexity.


Semi-Portal Configurations

Semi-portal structures are offset single-column gantries designed to partially span the roadway when full two-column portals are not feasible due to site or foundation limitations. This configuration maintains required structural performance while optimizing material use, foundation size, and installation efficiency.

Lattice Towers

Signal produces lattice towers for traffic signage according to client project documentation and static calculation requirements. While several standard models are regularly manufactured, most lattice towers are custom-designed to meet structural loads, wind resistance, and site-specific conditions. All structures comply with EN 1090-2 and EN ISO 3834-2 certified fabrication standards.

Custom Fabrications

From non-standard gantries and overhead sign supports to large lattice-tower structures, we deliver fully customized steel solutions tailored to each project. Based on the technical drawings and specifications provided by our cooperators, our production team manufactures custom spans, geometries, and connection details while ensuring full EN ISO 3834-2 welding compliance and EN 1090 conformity across all components.

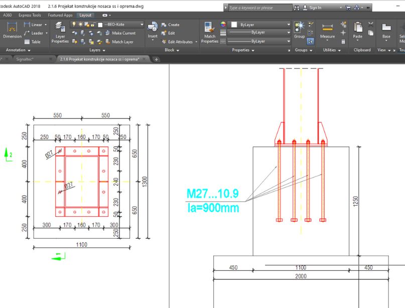
Supporting Components: Portal Holders, Anchor Plates & Steel Cages

In addition to the main gantry and overhead structures, Signal fabricates all supporting components necessary for safe and durable installation. Our portfolio includes portal holders and sign carriers designed for any board size, precision-cut anchor plates for secure foundation mounting, and steel reinforcement cages for concrete footings. Each component is engineered according to project specifications and complies with EN 1090-2 and EN ISO 3834-2 standards.

Production Capabilities

Our production facility is equipped with modern machinery allowing high-precision fabrication of all structural components, from anchor plates and base columns to full-span beams.

Fiber Laser Cutting (Sheets & Tubes)

We operate two high-performance fiber laser systems: a 12 kW sheet metal laser dedicated to cutting anchor plates, gussets, stiffeners, and holders, and a 3 kW tube and profile laser used for columns, beams, carriers, and reinforcement elements. This dual setup provides exceptional cutting precision and ensures perfect alignment of all gantry components during assembly.

Certified Welding and structural assembly

Our fabrication process complies with EN ISO 3834-2 and EN 1090-1 / EN 1090-2 (EXC2) certification requirements. All structural welds are executed using approved Welding Procedure Specifications (WPS), each verified through Procedure Qualification Records (WPQR) in accordance with EN 1090-2. We perform welding using the most widely applied industrial processes — MIG/MAG (135/136), TIG (141), and manual arc welding (111) — depending on material type, joint design, and load requirements. All welding work is carried out exclusively by certified welders with valid ISO 9606-1 qualifications, ensuring proven competence across all required materials, joint types, and welding positions. This guarantees consistent quality, full traceability, and structural reliability for every component we produce — including columns, beams, carriers, anchor plates, tubular elements, and lattice tower sections.

Column & Beam Fabrication

We produce structural elements including circular columns, rectangular profiles, and custom beams tailored to the project design.

Assembly of Mid-Sections

Main spans, reinforcement elements, and cross-members are assembled under controlled workshop conditions for guaranteed precision.

Surface Protection

All steel components are hot-dip galvanized through our trusted partner facility Metalcinkara in Indjija, with whom we have cooperated for over a decade. The process is performed according to EN ISO 1461, providing long-term corrosion resistance in demanding environmental conditions.

Delivery

SIGNAL organizes deliveries across Europe in cooperation with licensed international carriers. Among our most trusted partners is Adamsped , one of Serbia’s leading logistics companies. Shipments are either loaded directly at our facility or transferred to a customs terminal, where forwarding partners manage export clearance and onward transport. With regular deliveries to Switzerland and proven experience in other EU destinations, SIGNAL guarantees safe, documented, and timely delivery of certified steel components.

All gantry and semi portal structures are fabricated in modular sections. Even for long span designs, elements are limited to 6 meters, ensuring that the longest transport piece is typically a column.

With standard freight trailers of 13.6 meters, delivery is performed without oversized permits, making transport efficient, cost effective, and reliable across Europe. We support all logistics requirements, including professional packaging, secure loading, and complete transport documentation for export partners.

Installation

SIGNAL provides full-service installation of gantry, lattice tower, semi-portal, and cantilever sign structures across Europe, performed exclusively by our own certified teams and equipment. With extensive experience in the installation of large-format directional and informational signs/boards as well as overhead signs/boards, our company delivers complete on-site execution — from foundation preparation and structural assembly to final alignment and commissioning.

Our installation capacity includes:

  • Specialized transport vehicles for structures, equipment, and personnel
  • Crane trucks for lifting and positioning of large steel structures
  • Excavators and earthworks machinery for foundation preparation
  • Professional mounting equipment for high-elevation operations
  • Certified welding and assembly personnel

All works are carried out in accordance with applicable European standards and project specifications, supported by our EN 12899-1, EN 1090-1, and EN ISO 3834-2 certified production system.

SIGNAL has extensive experience in the installation of gantries, lattice towers, semi-portals, and cantilever structures, mounting large-format directional and informational boards as well as overhead signs, across Serbia and Montenegro, and is fully equipped and legally qualified to deliver installation projects throughout Europe.

Business hours 7:00am — 3:00pm